イベントEVENT

予約受付中
松本店
北アルプスを望む 北欧デザインのお家 in 大町市
- 開催日2/21(土)~3/1(日) 平日も公開中
- 開催時間10:00~16:00(ご見学終了17:00)(完全予約制/1時間1組/火・水定休日)
- 住所大町市常磐Google マップ

ー ー ― ― ー ー ― ー ー ― ― ー
2月21日(土)~3月1日(日) ※火・水定休日・予約制
北アルプスを望む北欧デザインの完成見学会開催。
ー ー ― ― ー ー ― ー ー ― ― ー
今回のお家は、インターデコハウスの人気シリーズ
”ルオント”
ダイニング・リビングからウッドデッキ
そして、北アルプスという大町だから出来る設計。
来場プレゼントもありますので、是非ご予約の上ご来場ください。

イベントの見どころポイントはココ!
-
■外観・エクステリア
平屋と総2階をつなぐ渡り廊下のある外観。
敷地への建物配置も北アルプスの見え方を考慮して配置。
※ルオント施工例写真 -
■タイルキッチン
タイルがかわいいキッチン。
無垢材の扉材など、本物の造作キッチン
※インターデコハウス施工例写真 -
■渡り廊下~リビングへ
ダイニングとリビング離れている設計になっており、空間をつなぐ渡り廊下
※ルオント施工例写真 -
■渡り廊下~ウッドデッキへ
渡り廊下からは、大きなFIX窓でウッドデッキが一望できます
※インターデコハウス松本店施工例写真 -
■繋ぐウッドデッキ
ダイニングとリビングの間にウッドデッキを配置。
アウトドアリビングとして、もう一つ上の理想のLIFEstyleを実現
※ルオント施工例写真 -
■家族が集うリビング
渡り廊下の先は、リビングだけの空間。
家族が、日常を忘れてつくつろいでほしい
※ルオント施工例写真
-
■オーナー様拘りポイント
室内壁には、オーナー様拘りのアンティークステンドグラス。
※インターデコハウス松本店施工例写真 -
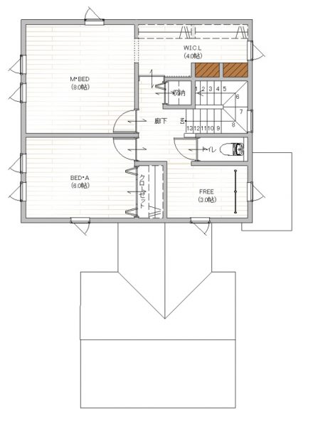
■1ST FLOOR
延床面積32坪。
家事らくな動線以外に、特徴はキッチン&ダイニングとリビングの配置。
是非ご覧頂きたい設計になっております。 -
■2ND FLOOR
広々W.I.CLなど収納充実。
日当たりも良好なFREEスペースなど景色を愉しむ以外にも参考になるポイントがいっぱい。
※写真はイメージです。実際と異なる場合があります。

ご来場予約していただくとプレゼントがもらえる!
- Webにて
ご予約 - ご来場受付
- スタッフが
丁寧にご説明 - アンケートに
ご記入 - ご来場特典
プレゼント!
【ご来場特典】
前日18:00までのWEB予約と初めての事前アンケート回答入力でQUOカード5,000円分。
※1家族様・1組様1枚となります。
※数に限りがございます
※真剣に新築をお考えの方に限ります
※長野テクノスの家(インターデコハウス・ナチュリエ)に初めてご来場頂いた方が対象となります
※事前アンケートに全てお答えいただいた方に限ります
※写真はイメージです
※写真はイメージです。実際と異なる場合があります。
お電話でのご予約・お問い合わせ
松本店
0120-59-7660
【営業時間】10:00~17:00 【定休日】水曜日(一部火曜日有・GW・年末年始・お盆期間休日有)
参加お申込みフォーム
- イベント名北アルプスを望む 北欧デザインのお家 in 大町市
- 開催日2/21(土)~3/1(日) 平日も公開中
- 開催時間10:00~16:00(ご見学終了17:00)(完全予約制/1時間1組/火・水定休日)
住所大町市常磐Google マップ
お客様情報をご入力
入力内容の確認
送信完了
| 時間帯 | 2/21 (土) | 2/22 (日) | 2/23 (月) | 2/26 (木) | 2/27 (金) | 2/28 (土) | 3/1 (日) |
|---|---|---|---|---|---|---|---|
| 10:00 | △ | △ | △ | △ | △ | △ | △ |
| 11:00 | × | △ | × | △ | △ | × | △ |
| 13:00 | × | △ | △ | △ | △ | △ | △ |
| 14:00 | × | △ | △ | △ | △ | × | △ |
| 15:00 | × | △ | × | △ | △ | × | △ |
| 16:00 | × | △ | △ | △ | △ | × | △ |
※ご入力の情報は「プライバシーポリシー」に従って取り扱われます。




